Room in Berlin, WG-HH-WG-5

WG-HH-WG-5
Rent
€ 640
Available from
Offered by
Spot a Home
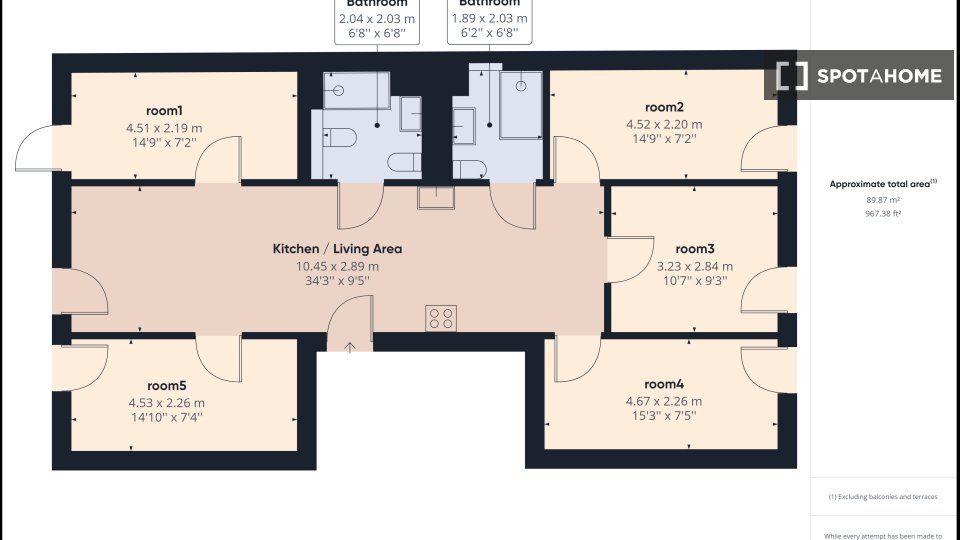
Square footage
98 m2
Bedrooms
10
Overview The flat was developed as a shared apartment concept. The individual rooms of the apartment complex are: - fully furnished - desk, chair - spacious wardrobe and cupboards - Internet and electricity are included in the warm rent - fully equipped kitchen (kitchen utensils, hoover) - underfloor heating - two bathrooms - incl. a fortnightly cleaning of the common areas (kitchen floor and work surfaces and the bathrooms, private rooms are not included) - shared rooms are just for one person - TV/Radio taxes are not incl. and has to be registered and paid by each shared apartment (not incl. in warm rent) Washing machines: In the basement of the rear building there is a laundry room with washing machines and dryers for all residents. There is a charge for these per wash. Provider and use via We Wash app. The building is equipped with selected digital individual components (packing station, locking and doorbell system, digital letterboxes, consumption meters, etc.). What’s cool about the apartment? Located in close proximity to the campus of the University of Applied Sciences (HTW), the flat is only about 500 m from the Spree river promenade. There is also a fitness studio in the immediate vicinity. Why Choose this apartment? The shared rooms have a well-equipped communal kitchen with a large dining table. Of course, your room is lockable. Your room has a terrace. How many rooms does the apartment have? The flat is a 5-room flat-share with a shared kitchen and two bathrooms. How big is the apartment? Does it have parking space? There are plenty of parking spaces in the public area. There are bicycle parking spaces in the courtyard. How is the commute from here to other locations? Tram lines 27, 60, 61, 67 and the N 65 night bus stop within walking distance of the building complex. The artistic hub of Berlin - Friedrichshain can be reached by public transport in only 25 min. Other Info

Essential services for your new home

Get yourself set up and ready to move in with these recommended providers.
For expats of all colours, shapes and sizes

Never miss a thing!Sign up for expat events, news & offers, delivered once a week.
Keep me updated with exclusive offers from partner companies
By signing up, you agree that we may process your information in accordance with our privacy policy

© 2026 IamExpat Media B.V.