Apartment in Dusseldorf, Kölner Landstraße

Kölner Landstraße
Rent
€ 590
Deposit
€ 1.140
Square footage
65 m2
Bedrooms
1
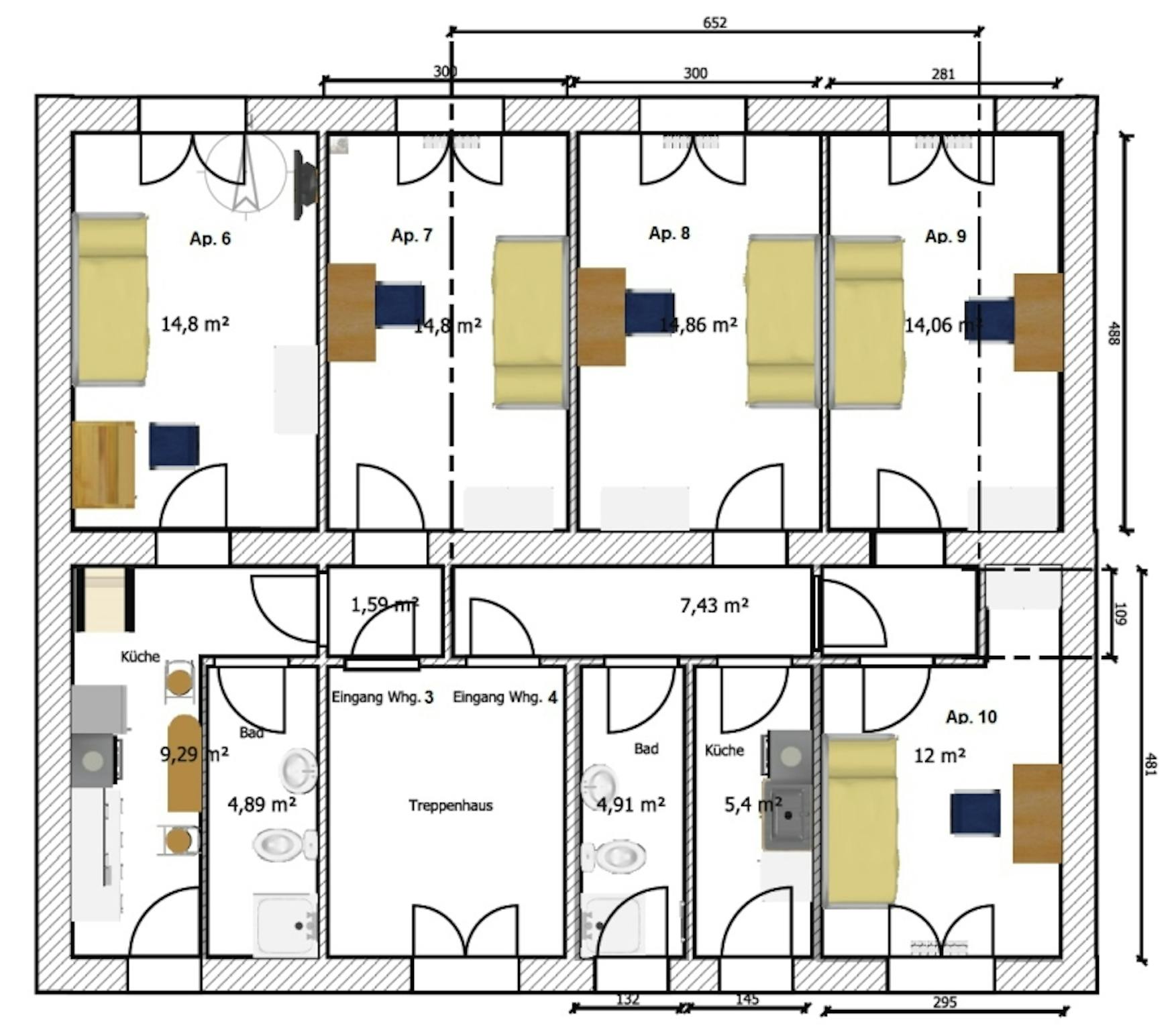
This is exclusively a women's shared flat! This is a nice room (Ap. 9, see position in the floor plan) in a 3-girl shared flat (i.e. 2 flatmates). The room is fully furnished: desk, wardrobe, bed with high-quality mattress etc., fully fitted kitchen (with hob, oven, fridge, sink etc.), new washing machine in basement, cutlery, pots, dishes etc.. Parking is available directly on the street or in the side streets. Smoking and animals are unfortunately not allowed. A large, quiet and very sunny garden is at the tenants' disposal. Free Wi-Fi (up to 150 MBit). Shared flat life: The house community is very harmonious, people help each other and also meet once in a while for a glass of wine in the garden. Most of the tenants are interns, trainees, students or employees at the university or the companies around. Some tenants have been living in the flat-sharing community for a long time, others only for an internship, for example. So if you want, you can do something with your flatmates or spend some time in the large sunny garden, but on the other hand, it's also OK if you want to be left alone. The district of Wersten is a popular place to live for students and borders directly on the campus of Heinrich Heine University in the west. On Kölner Landstraße you can find everything for your daily needs. The nearest tram stop is only about 50 metres away. Supermarkets and shops for daily needs are within walking distance. The university campus is only 1500m away and can be easily reached on foot, by bike or by tram. Henkel is also not far away. Our booking confirmation does not constitute a rental contract; the room is merely reserved. We will send the potential tenant a tenancy agreement after the booking. A rental agreement is only concluded when we countersign the rental agreement previously signed by the tenant. Until then, we expressly reserve the right to cancel the reservation.

Essential services for your new home

Get yourself set up and ready to move in with these recommended providers.
For expats of all colours, shapes and sizes

Never miss a thing!Sign up for expat events, news & offers, delivered once a week.
Keep me updated with exclusive offers from partner companies
By signing up, you agree that we may process your information in accordance with our privacy policy

© 2026 IamExpat Media B.V.